
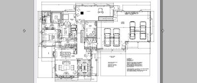
Blueprints for your new home, office, addition, or remodel will include floor plans, elevations, and 3D color renderings.
3D computer drawings will help you visualize the space and save you time & money by previewing the final project. Changes can be made easily and we will work with you to create your dream home.
A new house plan is approximately $1.00 -$1.50 sq-ft
*extra time put into the plans for changes is charged by the hour.
Additional info below
Design consultations for your home or business, including space planning, color scheme, paint colors, flooring, lighting, furnishings, etc. Guidance through your projects needs and selecting of materials are done by our designers.
Contact us for more info!

K.L. Design can update the front of your home with a simple fix by changing the color of your front door, adding landscaping, siding, stone, brick, a porch, or shingles. By adding curb appeal to your home it will give it a fresh new look.
KL Design will supply you with a detailed drawing for your new kitchen or remodel. A floor plan with each elevation will be shown. Rendered perspectives of the area will be shown as well. Revisions on the floor plan can be made during this process. If cabinets need to be purchased, a detailed list of sizes and specifications is included upon you request.
We provide Quartz and Granite countertops for your kitchen, bath, office, bar, fireplace etc. We carry several lines including Cambria!
Let us help you create a beautiful kitchen, bath, bar or office! Find us downtown Decorah at 106 Washington St.

Do you have a site/lot picked out?
What size of home (sq ft) are you considering?
What is your budget?